一、項目基本情況
原公告的采購項目名稱:紹興柯橋江濱水處理有限公司活動板房采購項目(第二次)
首次公告日期:2022年10月18日
二、更正信息
更正內容:對紹興柯橋江濱水處理有限公司活動板房采購項目(第二次)招標文件作如下補充說明及調整:
1、補充技術要求;詳見附件1。
2、投標截止時間及開標時間調整為:2022年11月1日下午15時00分;
3、投標文件遞交方式及要求:投標人應于2022年11月1日上午12時整之前將投標文件密封以郵寄(建議采用EMS或者順豐)的方式送達至浙江越鋒項目管理有限公司,收件人:馮青芝,聯系電話:17858520805,郵政編碼:312030,請寄件人在郵件外包裝注明投標項目名稱,投標人名稱,被授權人姓名及聯系電話, 郵寄以簽收時間為準, 逾期送達或未按照招標文件要求密封將予以拒收(或作無效標處理)。郵寄過程中投標文件產生任何破損,由投標單位自行承擔風險。
也可現場遞交標書,投標人應于2022年11月1日下午15時整之前將投標文件送達至紹興柯橋江濱水處理有限公司三樓一號會議室。現場遞交給招標人簽字確認,應即交即走。
招標單位:紹興柯橋江濱水處理有限公司
2022年10月27日
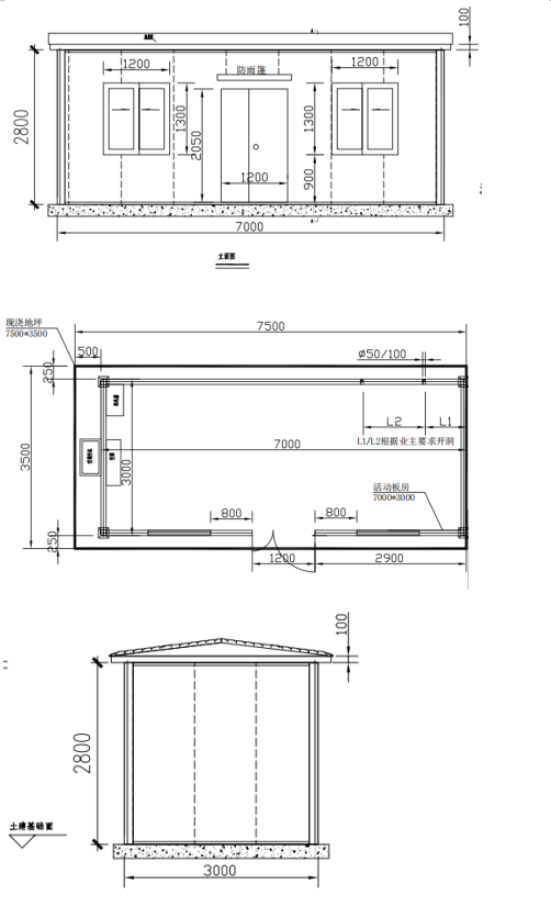
附件1:補充活動板房圖紙及相關配置要求



材料清單 | |||||
序號 | 類別 | 內容 | 材料名稱/規格/材質 | 備注 | |
房體 | 1 | 墻體及室內頂板 | 100EPS(鋼板厚度外0.8/內0.5) | ||
2 | 不銹鋼防盜門 | 子母防盜門1200*2050 | |||
3 | 防雨棚 | 1500*600 | |||
4 | 機房地面 | 600*600防滑地磚 | |||
5 | 機房框架 | 鋁合金立柱框架 | |||
6 | 鋼結構龍骨 | ||||
7 | 吊頂 | 輕鋼龍骨鋁合金扣板 | |||
8 | 窗戶 | 鋁合金窗 | |||
二 | 美化裝飾 | 1 | 雙面坡屋頂框架 | 熱鍍鋅鋼結構框架 | |
2 | 雙面坡美化屋頂 | 彩鋼琥璃瓦 | |||
三 | 接地系擾 | 1 | 接地母線 | 4*40熱鍍使鋅扇帳 | |
四 |
厥明系統 | 1 | 亮燈 | 60W,LED吸頂燈3盞 | |
2 | 開關 | 照明開關3開 | |||
3 | 五孔抽座 | ||||
4 | 線纜、線槽等 | ||||
五 | 電幕分 | 1 | 空調插座 | 帶防雷器空開 | |
2 | 配電籍 | 設備5、空調、照明、插座 | 8路空開 | ||
六 | 其他 | 1 | 側面開孔 | 數個,甲方現場指導,要帶套管,和封泥 | |
更正日期:2022年10月27日
三、其他補充事宜
無。
四、對本次采購提出詢問,請按以下方式聯系。
招標人名稱:紹興柯橋江濱水處理有限公司
詳細地點:紹興市柯橋濱海工業區興濱路北十一路口
聯 系 人:蔣濤
聯系電話:15657580076
傳真:0575-85628972
招標代理名稱:浙江越鋒項目管理有限公司
詳細地點:柯橋湖西路1176號(現代大廈2幢)
聯 系 人:馮青芝
聯系電話:0575-81183399
傳真:0575-85560088
監督管理部門:紹興柯橋江濱水處理有限公司紀檢組
聯系人:周先生
監督投訴電話:0575-85628981